Цена от:
604 800
Цены на сайте не обновляем, заказывайте расчет, он бесплатный
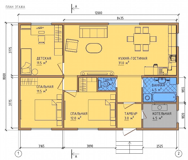
Общая площадь
96
- Длина:
12
- Ширина
8
- Тип строения:
Дом
- Этажей (кол-во ):
1
- Стены (материал):
Каркасные
- Комнат (кол-во):
4
- Гараж:
Нет
- Панорамные окна:
Нет
- Терраса:
Нет
- Эркер:
Нет
- Балкон:
Нет
- Закрытая веранда:
Нет
- Тип крыши:
Двухскатная
Сохранить и поделиться:

Что входит в стоимость

Фундамент
Винтовые сваи ВС-108/300/2500 мм, соответствующие ТУ 5260-001-84045723-2011, с толщиной стенки 4 мм и лопасти 5 мм. Покрытие двухкомпонентным защитным составом обеспечивает долговечность. Монтаж выполняется с применением спецтехники. Внутренняя полость свай заполняется бетонной смесью М300. Устанавливаются металлические оголовки 200х200 мм. Горизонтальная гидроизоляция выполнена из стеклогидроизола в два слоя.

Фундаменты на винтовых сваях отличаются надежностью, долговечностью и минимальными требованиями к участку. Они идеально подходят для сложных грунтов: пучинистых, обводненных, с сильным перепадом высот или подверженных весенним паводкам.

Современная техника позволяет проводить работы даже в стесненных условиях. Процесс монтажа быстрый и экономичный: сваи завинчиваются на нужную глубину, выравниваются, заполняются бетоном и оснащаются оголовками.

Для каркасного дома достаточно свай диаметром 108 мм с антикоррозийным покрытием.


Антисептирование
Обработка всех силовых элементов каркаса огне-биозащитным составом NEOMID 450-1. Этот состав защищает древесину от возгорания, гниения, плесени, насекомых и других биопоражений.

Древесина — популярный материал в каркасном строительстве, но она требует защиты от внешних факторов. Обработка антисептиком устраняет эти недостатки, продлевая срок службы конструкции.

NEOMID 450-1 обеспечивает 1 группу огнезащитной эффективности по ГОСТ Р 53292-2009. Срок действия защиты — до 10 лет.


Стены и перегородки

  • Внешние стены: одинарный каркас из доски 45х190 мм, утепление базальтовыми плитами 200 мм.

  • Внутренние несущие стены: каркас из доски 45х140 мм.

  • Перегородки: каркас из доски 45х90 мм, звукоизоляция базальтовыми плитами 100 мм.

  • Защита: супердиффузионная мембрана и пароизоляция с проклейкой швов.

  • Фасад: маяки из доски 25х100 мм для вентиляционного зазора.

Наружные стены обеспечивают защиту от температурных перепадов, влаги и ветра. Базальтовый утеплитель и мембраны делают дом энергоэффективным. Внутренние перегородки с звукоизоляцией создают комфортную акустику.


Кровля

  • Стропильная система из доски 50х200 мм с шагом 580 мм.

  • Утепление базальтовыми плитами 200 мм.

  • Защита: супердиффузионная мембрана и пароизоляция с проклейкой швов.

  • Покрытие: металлочерепица толщиной 0,45 мм с декоративным слоем полиэстера 25 мкм (гарантия — до 12 лет).

  • Дополнительно: пластиковая водосточная система и трубчатые снегозадержатели.

Кровля обеспечивает надежную защиту от осадков и теплопотерь. Утепление и мембраны повышают энергоэффективность, а металлочерепица сочетает эстетику и долговечность.


Окна и двери

  • Окна: ПВХ REHAU Grazio с 2-камерным стеклопакетом (3 стекла), 5-камерный профиль толщиной 70 мм. Комплектация включает подоконники, отливы и москитные сетки.

  • Входные двери: металлические с утеплением, 4-й класс взломостойкости.

Окна и двери обеспечивают теплоизоляцию и безопасность. Пластиковые окна REHAU и утепленные двери с терморазрывом идеально подходят для каркасного дома.


Лестницы
Временные входные и межэтажные лестницы из строганных пиломатериалов.


Внутренняя отделка влажных помещений (черновая)

  • Стены: влагостойкий гипсокартон (ГКЛВ) 12,5 мм в 2 слоя.

  • Пол: цементно-стружечная плита (ЦСП) 20 мм с гидроизоляцией под стяжку для плитки.

  • Потолки: ГКЛВ 9,5 мм в 1 слой.


Внутренняя отделка сухих помещений

  • Стены и потолки: вагонка из хвойных пород, сорт А-В, толщиной до 12,5 мм.

  • Пол: влагостойкая фанера ФСФ 18 мм.


Внешняя отделка

  • Фасад: деревянные панели 140х16 мм, имитирующие брус, с пазогребневым соединением.

  • Подшив свесов кровли: вагонка из хвойных пород.


Террасы, балконы и крыльца

  • Полы: строганная доска 45х140 мм с зазорами 4-5 мм.

  • Ограждения: из строганных пиломатериалов.

  • Потолки: вагонка из хвойных пород.

Оставить заявки на расчет
Оставьте заявку и мы вам рассчитаем в течение дня БЕСПЛАТНО

Этапы

Согласование
Согласование Договор
Доставка
Строительство
Сдача объекта
Оплата

Другие дома

Площадь (м2)
64
Длина
8
Ширина
8
Тип строения
Дом
Этажей
1+мансарда
Цена:
Площадь (м2)
64
Длина
8
Ширина
8
Тип строения
Дом
Этажей
1+мансарда
Цена:
Площадь (м2)
64
Длина
8
Ширина
8
Тип строения
Дом
Этажей
1+мансарда
Цена:
Площадь (м2)
64
Длина
8
Ширина
8
Тип строения
Дом
Этажей
1+мансарда
Цена:
Площадь (м2)
64
Длина
8
Ширина
8
Тип строения
Дом
Этажей
1+мансарда
Цена:
Площадь (м2)
63
Длина
9
Ширина
7
Тип строения
Дом
Этажей
1+мансарда
Цена:

Почему нас рекомендуют

Фиксированная цена в договоре

Нет дополнительных и скрытых платежей

Оплата в 4 этапа

Аванс составляет 20%, остальное по факту выполненных работ

Выезд замерщика в день обращения

После вашего звонка замерщик к вам приезжает в течении 1-го дня

Работаем по СП, СНИП и ГОСТ

Соблюдаем все требования. Имеем сертификаты на всю продукцию.

Материалы по диллерским ценам

Работаем напрямую с заводами

Сертификаты
на материалы

Вы уверены что для вас используются материалы высокого качества

Часто задаваемые вопросы

В стройке мы уже более 10 лет, опыт есть

  • Сами мы выполняем общестроительные, отделочные работы, устройство участка, разводка инженерных систем (электричество, отопление по дому, водоснабжение) и прочее. 
  • Подрядчиков мы приглашаем на работы, которые мы каждый день не выполняем и требуют специализации, к примеру: производство и установка окон и дверей (спецзаказы), систем кондиционирования, оборудование котельных, установка скважин, септиков.
  • Поиск, привлечение, соблюдение договоренностей и контроль выполнения работ подрядчиками – это наша задача.
  • 80 % всех работ по строительству Вашего дома мы выполняем самостоятельно и только в 20% — привлекаем подрядчиков.
  • С каждым подрядчиком мы заключаем договор, в котором он указывает гарантию на выполненные им работы, и в случае возникновения неисправностей, их устранение лежит на подрядчике.

Да, есть объекты, которые мы можем показать, на разных этапах работ и уже сданные дома по предварительной договоренности.

По проектированию вноситься аванс в течении 5-ти дней после подписания договора в размере 70% от общей суммы. Остаток оплачивается при передачи клиенту готового проекта.

Оплата строительства разбивается соответственно этапам, которые прописаны в смете. Каждый этап строительства также разбивается на платежи, размер которых может быть разным (обычно это связанно с необходимостью закупки материалов)

 
 

Электричество мощностью не менее 5кВт и техническая вода.

Если этого нет, то мы привезем свои генераторы БЕСПЛАТНО. Воду в большинстве случаев при деревянном строительстве используют только для бытовых нужд, ее доставку мы обеспечим своими силами.

Стоимость может поменяться, если вы только что то изменили в комплектации.
 
Изменение общей стоимости работ по настоящему Договору возможно только по взаимному согласию сторон в случае изменения объёмов работ, что должно быть оформлено в письменном виде двусторонним дополнительным соглашением к настоящему Договору.
Строим мы круглый год, одно из важных условий в весенне-осенний период это пригодная дорога для подъезда автотранспорта.
  • Договор на строительство подписывается после разработки и утверждения сметы.

Самый дешевый вариант — поставить на бетонные блоки

Средний вариант и который в основном все предпочитают — свайно винтовой фундамент, недорого и быстро

 

Все зависит от размеров ну как правило по среднему дом ставится от 2-х недель до 1,5 месяца, на сроки влияют в основном размеры и выбранная комплектация

Заказать звонок

Мы свяжемся с вами в течении 15 минут

Нажимая на кнопку, вы даете согласие на обработку своих персональных данных